
- $3,095,000 En Venta
- 2 recámaras
- 2 baños
- 1 Estacionamientos
Detalles
- Tipo: Departamento
- ID: EB-UM8144
- Clave interna: DESEV-GMMP48
- Antigüedad: En construcción
- Recámaras: 2 recámaras
- Baños: 2
Descripción
Desarrollo de 6 departamentos
1 cajón de estacionamiento por unidad
Rooftop común con área de tendido y barra de servicio
Acabados modernos y excelente iluminación natural
🔸 Distribución por niveles
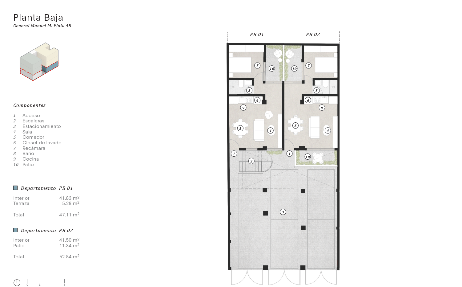
Planta Baja
PB01 — $3,095,000
1 recámara | 1 baño completo | cocina integral | clóset de lavado | patio trasero (5.28 m²) | interior 41.83 m²
PB02 — $3,195,000
1 recámara | 1 baño completo | cocina integral | clóset de lavado | patio trasero (5.28 m²) + patio frontal (6.06 m²) | interior 41.50 m²
Primer Nivel
101 — $3,995,000
3 recámaras | 2 baños completos | cocina integral concepto abierto | clóset de lavado | interior
102 — $4,595,000
2 recámaras | 2 baños completos | estancia con balcones tipo Juliette | cocina integral concepto abierto | clóset de lavado | exterior
Segundo Nivel
201 — $3,995,000
3 recámaras | 2 baños completos | cocina integral concepto abierto | clóset de lavado | interior
202 — $4,595,000
2 recámaras | 2 baños completos | estancia con balcones tipo Juliette | cocina integral concepto abierto | clóset de lavado | exterior
📍 Ubicación
A solo minutos de Constituyentes, Santa Fe, Tacubaya y Bosques de las Lomas.
Zona con excelente conectividad, cerca de centros comerciales, escuelas, parques y transporte público.
💡 Ideal para vivir o invertir
Los precios accesibles, la plusvalía en la zona y el diseño moderno lo convierten en una excelente oportunidad para inversionistas o familias jóvenes que buscan comodidad y ubicación.
Opciones de financiamiento
- Créditos bancariosMortgage
- FOVISSSTE
- INFONAVIT / COFINAVIT
- ISSFAM / Banjercito
- PEMEX
Amenidades
- Balcón
- Cisterna
- Estacionamiento techado
- Facilidad para estacionarse
- Garaje
- Patio
- Roof garden
- Cocina integral
- Mascotas permitidas
- Permitido fumar
Ubicación