Ver Tour Virtual
- $7,023,752.59 En Venta
- 2 recámaras
- 2 baños
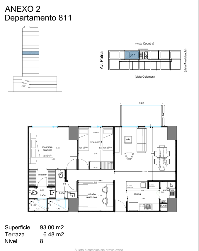
- 99.48 m² de construcción
- 2 Estacionamientos
Detalles
- Tipo: Departamento
- ID: EB-UU2184
- Clave interna: 811
- Antigüedad: A estrenar
- Recámaras: 2 recámaras
- Baños: 2
- Piso: 12
- Mantenimiento: 3200
Descripción
Amenidades completas:
🏊♂️ Alberca
🔥 Fire pit
🍖 Asadores
💼 Coworking
🏋️ Gimnasio
🎉 Salón social
🐾 Pet park
👶 Ludoteca
🌳 Jardines
⛳ Putting green
🛋️ Terraza y áreas de descanso
📹 Seguridad 24/7
Ideal para vivir con comodidad o invertir en una zona de alta demanda en renta.
Solicita disponibilidad y agenda tu visita.
Amenidades
- Estacionamiento techado
- Facilidad para estacionarse
- Jardín
- Roof garden
- Terraza
- Accesibilidad para adultos mayores
- Accesibilidad para personas con discapacidad
- Circuito cerrado
- Cocina integral
- Elevador
- Estudio
- Fraccionamiento privado
- Portero
- Rampas
- Seguridad 24 horas
- Una sola planta
- Mascotas permitidas
- Alberca
- Área de juegos infantiles
- Gimnasio
- Ludoteca
- Salón de usos múltiples
Ubicación












