La Paz Bay Rentals and Real Estate

  • 016121362761
  • la-paz-bay-rentals-and-real-estate.easybroker.com

Vendo Bodega Comercial a media cuadra del Mercado de Tlalnepantla Cod. BGV281

Tlalnepantla Centro, Tlalnepantla de Baz

$36,000,000 For Sale

$360,000 For Rent

  • 1,800 m² total space
  • 1,170 m² Lot Size
  • 46.8 m Lot Length
  • 25 m Lot Width
  • 2 Floors
  • 1960 Age
  • EB-NR3549 ID
Description

CATEGORÍA DE INMUEBLE
Acceso por Teotihuacan o por Aztecas
Increíble propiedad comercial mixta
Para inversionistas inteligentes.
1,170m2 de terreno.
1,800m2 construcción

UBICACIÓN
A 1/2 cuadra mercado de Tlalnepantla
Tlalnepantla Centro cerca del Zocalo

ALTERNATIVAS DE USO
Condominio de mini-bodegas
Tienda de autoservicio
Tienda Departamental
Edificio de Locales y departamentos
Plaza de la computación
Plaza de la construcción
Plaza de material Eléctrico
Hotel o Motel
Departamentos Air B & B

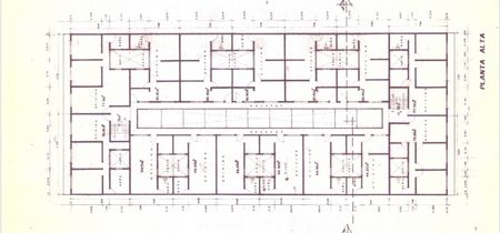
DISTRIBUIDOS
A.- En segundo nivel
6 Deptos/Bodega/Oficina de 50m2
6 Deptos/Bodega/Oficina de 65m2
4 Deptos/Bodega/Oficina de 75m2
B.- Directos tipo Pasaje
6 Locales de 60m2
6 Locales de 75m2
C.- Directos sobre la calle
4 Locales de 37.5m2 sobre Aztecas
4 Locales de 37.5m2 sobre Teotihuacán
Cada uno cuenta con cuarto de baño
Es decir cuenta con 36 baños
D.- Aprox 200m2 áreas de circulación

ACABADOS
Protecciones en puertas y ventanas
Muros repellados de hormigón
Pisos de Pasta y Quarry Tile
Locales con cortinas de hierro
Rejas de acceso por ambas calles
Seguridad de entrada o salida

VENTAJAS
Gran accesibilidad. servicios cercanos:

BANCOS CERCANOS
BBVA, HSBC y BIENESTAR,

HOSPITALES
Hospital médica Leo, IMSS

FARMACIAS
San Pablo, Fenix Tlalnepantla, Similares

Amenities
  • Covered parking
  • Street parking
  • BBQ grill
  • Patio
  • Terrace
  • Accessibility for elderly
  • Handicap accessible
  • Storge Unit
  • Kitchen
  • Double story
  • Study
  • Single story

La Paz Bay Rentals and Real Estate

  • 016121362761
  • la-paz-bay-rentals-and-real-estate.easybroker.com

La Paz Bay Rentals and Real Estate

  • 016121362761
  • la-paz-bay-rentals-and-real-estate.easybroker.com