La Paz Bay Rentals and Real Estate

  • 016121362761
  • la-paz-bay-rentals-and-real-estate.easybroker.com

LOCAL COMERCIAL EN GUSTAVO BAZ

La Loma, Tlalnepantla de Baz

$138,750 For Rent

  • 265.5 m² total space
  • 116,372 m² Lot Size
  • EB-PO2375 ID
Description

Puede ser local comercial o sucursal Bancaria

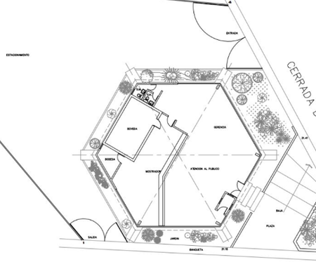
Características del inmueble
Jardín exterior
Estacionamiento
Sanitarios
Bóveda de seguridad
Portón de entrada y salida
Puerta lateral
Alumbrado general
Privado

Especificaciones:
Superficie de terreno 1,163.72m2
Superficie de construcción 265.50m2
Superficie de estacionamiento 630.83m2
Plaza y jardín 267.39m2
*Renta + IVA

Amenities
  • Street parking

La Paz Bay Rentals and Real Estate

  • 016121362761
  • la-paz-bay-rentals-and-real-estate.easybroker.com

La Paz Bay Rentals and Real Estate

  • 016121362761
  • la-paz-bay-rentals-and-real-estate.easybroker.com