La Paz Bay Rentals and Real Estate

  • 016121362761
  • la-paz-bay-rentals-and-real-estate.easybroker.com

DEPARTAMENTO DE DOS RECAMARAS CON AMENIDADES EN TEMOZON NORTE MERIDA

Temozón Norte, Mérida

$4,650,000 For Sale

  • 2 Bedrooms
  • 2 Bathrooms
  • 1 Half Bathrooms
  • 2 Parking spaces
  • 120.25 m² total space
  • Under Construction Age
  • EB-NP0721 ID
Description

Complejo de departamentos ubicado al norte de la ciudad de Mérida, en Temozón Norte, en donde podrás disfrutar de colegios, universidades, centros comerciales y los hospitales mas prestigiosos, la zona más exclusiva, diseñado para que disfruten los habitantes.

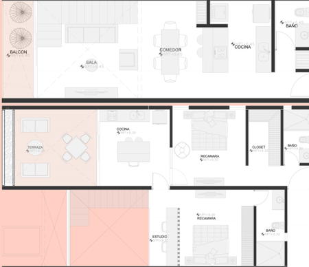
Modelo Pent Garden:
-Estacionamiento para dos vehículos
-Sala
-Comedor
-Cocina con barra desayunador
-Medio baño para visitas
-Recámara principal con closet vestidor y baño completo
-Recámara secundaria con closet y baño
-Área de servicio con baño completo
-Amplia terraza privada con piscina

Modelo Penthouse Jr.
-Sistema De lock Off
Planta baja:
-Estacionamiento para dos vehículos
-Sala
-Comedor
-Cocina con barra desayunador
-Medio baño para visitas
-Balcón
Planta alta:
-Recámara principal con closet vestidor y baño completo
-Recámara con closet y baño completo
-Estudio con work desks
-Recámara secundaria con closet y baño completo
-Cocina secundaria con barra desayunador
-Roof top con terraza

Equipamiento incluido:
-Calentador eléctrico
-Parrilla eléctrica
-Gaveta inferior de cocina
-Closet interior en recámara

Amenidades:
-Lobby con vigilancia
-Cámaras de seguridad con circuito cerrado
-Elevador
-Bodega para pedidos on-line
-Mirador
-Co working
-Sala de Juntas
-Roof top
-Piscina
-Área de asadores
-Yoga terrace
-Cardio room
-Kids room

Amenidades:
Mirador
Área de asadores
Kids room
Co working
Yoga terrace
Sala de juntas
Cardio room
Piscina
Rooftop

Servicios:
Elevador
Bodega de pedidos en linea
Recepción con seguridad
Wi-fi en áreas comunes
Administración de rentas y Airbnb *
Cámaras de seguridad con circuito cerrado
Estacionamiento privado

*Precios y disponibilidad sujetos a cambio sin previo aviso. El precio de la publicación no incluye gastos notariales, impuestos ni derechos, esos deberán ser calculados por el notario de su elección al momento de la compra. Consulta restricciones, términos y condiciones con un asesor. Las imágenes y/o renders son conceptuales, deben servir únicamente como referencia y pueden variar. No incluye mobiliario*

Amenities
  • Balcony
  • Covered parking
  • Street parking
  • Storge Unit
  • Closed-Circuit Security System
  • Elevator
  • Private housing development
  • Door man
  • 24 Hour Security
  • Pool
  • Gym
  • Multipurpose room

La Paz Bay Rentals and Real Estate

  • 016121362761
  • la-paz-bay-rentals-and-real-estate.easybroker.com

La Paz Bay Rentals and Real Estate

  • 016121362761
  • la-paz-bay-rentals-and-real-estate.easybroker.com