La Paz Bay Rentals and Real Estate

  • 016121362761
  • la-paz-bay-rentals-and-real-estate.easybroker.com

RENTA O VENTA DE NAVE INDUTRIAL DE 2350 M2 SOBRE CARR. A CONKAL

Mococha, Mocochá

$33,000,000 For Sale

$95 per m² For Rent

  • 5 Parking spaces
  • 2,350 m² total space
  • 3,635 m² Lot Size
  • 60 m Lot Length
  • 60 m Lot Width
  • New Age
  • Incluido Expenses
  • EB-SI2579 ID
Description

Ubicadas sobre la carretera Mérida-Motul, kilometro 14.2, dentro del parque industrial Tek Park:

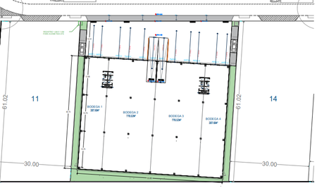
2 BODEGAS INDUSTRIALES DISPONIBLES IDEALES PARA ALMACENAMIENTO O MANUFACTURA.
B1: 1,175 M2
B2: 1,175 M2

Cada una trendrá oficinas 10 M2 en planta alta y baños de 10 M2 en planta baja.

La nave multiusuario contará con
-Patio de maniobras de 765 M2
-Áreas verdes
-Área permeable en estacionamiento
-Ancho a ejes de 8.65 M
-Largo a ejes de 13.95 M
-Altura libre a rodilla de 6 M
-Altura libre a cumbrera de 8 M
-Area a cubrir en cubierta 2410.3 M2
-Firme de concreto interior f'c=200 kg/cm2, reforzado con 12 cm espesor.
-Carpeta asfaltica en area de patio de maniobras, 5cm espesor
-Firme de concreto exterior f'c=250 kg/cm2, reforzado en anden inverso
-Energía trifásica.
-2 biodigestores de 600 L c/u
-2 pozos de aprovechamiento de agua
-mantenimiento incluido

PRE-RENTA
ENTREGA ENERO 2026

Amenities
  • 24 Hour Security
  • Platform
  • Street parking
  • Handicap accessible
  • Storge Unit
  • Ramps

La Paz Bay Rentals and Real Estate

  • 016121362761
  • la-paz-bay-rentals-and-real-estate.easybroker.com

La Paz Bay Rentals and Real Estate

  • 016121362761
  • la-paz-bay-rentals-and-real-estate.easybroker.com